販売物件情報
交野市森北2丁目
| 画像 | |
|---|---|
|
|
物件情報
| 価格 | 1,380万円(↓12.7%値下がり) |
|---|
この物件のお支払い例
頭金0円/ボーナス払い0円
1,380
32,968
※上記支払例の借入条件: 金利0.7%、借入総額1,380万円、借入期間35年



- 47,541


※上記支払例の借入条件:金利0.7%、借入総額1,990万円、借入期間35年
所在地・交通
| 所在地 | 交野市森北2丁目 | ||
|---|---|---|---|
| 最寄駅 | 片町線 河内磐船 | 徒歩分数 | 5分 |
| 最寄バス停 | 徒歩分数 | ||
| 小学校校区 | 交野市立岩船小学校 | 中学校校区 | 交野市立第四中学校 |
※学校区は住所から自動判定したものであり、保証できる情報ではございません。正確な学校区はお問い合わせ下さい。
「人型アイコン」を地図上にドラッグすることで『Google Street View』に切り替わります。
※地図上の「対象地」は「〒576-0036 大阪府交野市森北2丁目」の場所を指しています。実際の場所ではない場合がございます。詳しくはお問い合わせください。
物件概要
| 種目 | 中古一戸建住宅 | ||
|---|---|---|---|
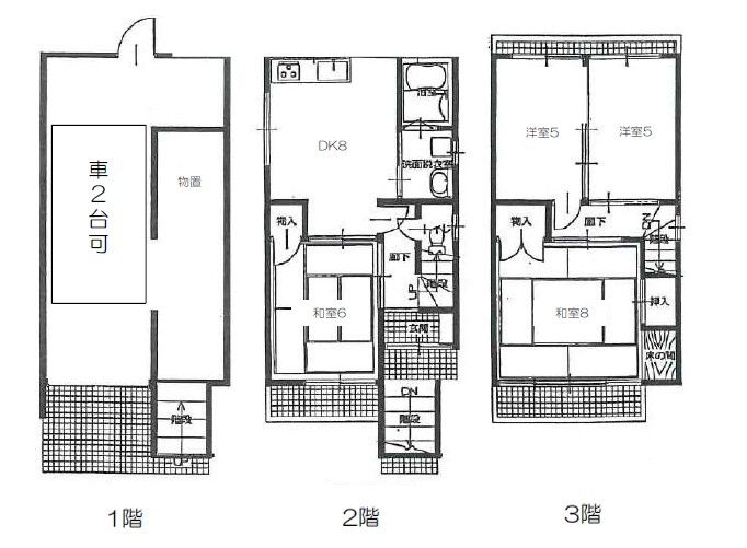
| 間取り | 4DK | 間取り内訳 | |
| 土地面積 | 57.6㎡ | 私道面積 | |
| 建物面積 | 97.29㎡ | 建物構造規模 | 木造 3階建 |
| 築年月(竣工月) | 1990年1月 | 駐車場 | 有 |
| 建ぺい率/容積率 | 60%/200% | 都市計画 | 市街化区域 |
| 接道状況 | 北西3m 南東9.9m 二方道路(除角地) | ||
| 地目 | 宅地 | ||
| 土地権利 | 所有権 | 地勢 | |
| 用途地域 | 第二種中高層住居専用地域 | ||
| 現況 | 空家 | 取引態様 | 媒介 |
| 建築確認番号 | |||
※未完成物件は工事の進捗状況により遅れが生じる場合があります。予めご了承ください。
取引条件等
| 引渡し | 即時 |
|---|
その他
| 設備 | 都市ガス、上水道、下水道 | ||
|---|---|---|---|
| 特徴 | |||
| 諸条件・相談 | |||
| 情報登録日 | 2025年5月10日 | 情報更新予定日 | 2025年11月10日 |
| 物件番号 | 35434 | ||












































