販売物件情報
交野市郡津3丁目
画像 | |
---|---|
|
|
|
物件情報
価格 | 1,780万円 |
---|
この物件のお支払い例
頭金0円/ボーナス払い0円
1,780
42,524
※上記支払例の借入条件: 金利0.7%、借入総額1,780万円、借入期間35年

- 57,097
※上記支払例の借入条件:金利0.7%、借入総額2,390万円、借入期間35年
所在地・交通
所在地 | 交野市郡津3丁目 | ||
---|---|---|---|
最寄駅 | 京阪交野線 郡津 | 徒歩分数 | 5分 |
最寄バス停 | 徒歩分数 | ||
小学校校区 | 交野市立郡津小学校 | 中学校校区 | 交野市立第二中学校 |
※学校区は住所から自動判定したものであり、保証できる情報ではございません。正確な学校区はお問い合わせ下さい。
「人型アイコン」を地図上にドラッグすることで『Google Street View』に切り替わります。
※地図上の「対象地」は「〒576-0053 大阪府交野市郡津3丁目」の場所を指しています。実際の場所ではない場合がございます。詳しくはお問い合わせください。
物件概要
種目 | 中古一戸建住宅 | ||
---|---|---|---|
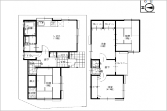
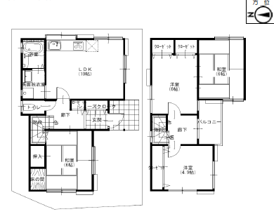
間取り | 4LDK | 間取り内訳 | 1FLDK10畳×1室 1F和6畳×1室 2F和6畳×1室 2F洋6畳×1室 2F洋5畳×1室 |
土地面積 | 78.55㎡ | 私道面積 | |
建物面積 | 80.73㎡ | 建物構造規模 | 木造 2階建 |
築年月(竣工月) | 1982年1月 | 駐車場 | |
建ぺい率/容積率 | 60%/200% | 都市計画 | 市街化区域 |
接道状況 | 北4m 公道 接面11.1m 位置指定無 西4m 公道 接面7.1m 位置指定無 角地 | ||
地目 | 宅地 | ||
土地権利 | 所有権 | 地勢 | 平坦 |
用途地域 | 第一種中高層住居専用地域 | ||
現況 | 空家 | 取引態様 | 媒介 |
建築確認番号 |
※未完成物件は工事の進捗状況により遅れが生じる場合があります。予めご了承ください。
取引条件等
引渡し | 即時 |
---|
その他
設備 | |||
---|---|---|---|
特徴 | |||
諸条件・相談 | |||
情報登録日 | 2025年7月25日 | 情報更新予定日 | 2025年10月15日 |
物件番号 | 36352 |