販売物件情報
枚方市大峰元町2丁目
画像 | |
---|---|
|
|
|
物件情報
価格 | 1,500万円 |
---|
この物件のお支払い例
頭金0円/ボーナス払い0円
1,500
35,835
※上記支払例の借入条件: 金利0.7%、借入総額1,500万円、借入期間35年

- 50,407
※上記支払例の借入条件:金利0.7%、借入総額2,110万円、借入期間35年
所在地・交通
所在地 | 枚方市大峰元町2丁目 | ||
---|---|---|---|
最寄駅 | 片町線 津田 | 徒歩分数 | 33分 |
最寄バス停 | 京阪バス 四辻 | 徒歩分数 | 8分 |
小学校校区 | 枚方市立津田小学校 | 中学校校区 | 枚方市立津田中学校 |
※学校区は住所から自動判定したものであり、保証できる情報ではございません。正確な学校区はお問い合わせ下さい。
「人型アイコン」を地図上にドラッグすることで『Google Street View』に切り替わります。
※地図上の「対象地」は「〒573-0146 大阪府枚方市大峰元町2丁目」の場所を指しています。実際の場所ではない場合がございます。詳しくはお問い合わせください。
物件概要
種目 | 中古一戸建住宅 | ||
---|---|---|---|
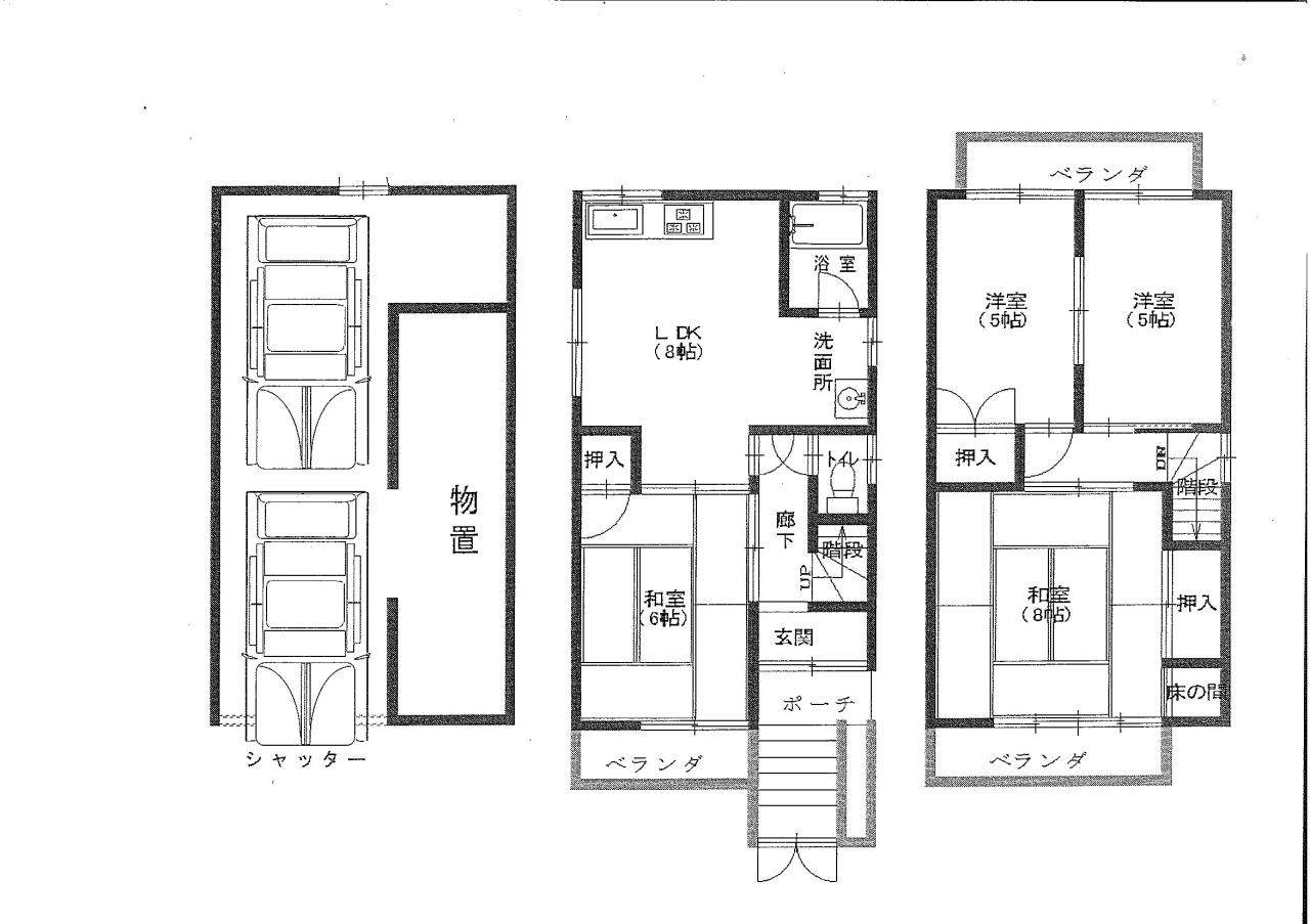
間取り | 4LDK | 間取り内訳 | LDK8畳 和8畳 和6畳 洋5畳 洋5畳 |
土地面積 | 58.14㎡ | 私道面積 | |
建物面積 | 97.47㎡ | 建物構造規模 | 木造 3階建 |
築年月(竣工月) | 1988年2月 | 駐車場 | 有 |
建ぺい率/容積率 | 60%/200% | 都市計画 | 市街化区域 |
接道状況 | 南西4.7m 私道 接面5m 位置指定有 一方道路 | ||
地目 | 宅地 | ||
土地権利 | 所有権 | 地勢 | 平坦 |
用途地域 | 第一種住居地域 | ||
現況 | 空家 | 取引態様 | 媒介 |
建築確認番号 |
※未完成物件は工事の進捗状況により遅れが生じる場合があります。予めご了承ください。
取引条件等
引渡し | 相談 |
---|
その他
設備 | 追焚機能、電気、都市ガス、上水道、下水道、側溝、駐車場2台分、[洗面台][洗濯機置場][火災警報器等設置済] | ||
---|---|---|---|
特徴 | [5年以内に内装リフォーム] | ||
諸条件・相談 | |||
情報登録日 | 2025年8月30日 | 情報更新予定日 | 2025年10月18日 |
物件番号 | 36742 |