販売物件情報
枚方市招提大谷3丁目
画像 | |
---|---|
|
|
|
物件情報
価格 | 648万円(↓7.2%値下がり) |
---|
この物件のお支払い例
頭金0円/ボーナス払い0円
648
15,480
※上記支払例の借入条件: 金利0.7%、借入総額648万円、借入期間35年

- 30,053
※上記支払例の借入条件:金利0.7%、借入総額1,258万円、借入期間35年
所在地・交通
所在地 | 枚方市招提大谷3丁目 | ||
---|---|---|---|
最寄駅 | 片町線 長尾 | 徒歩分数 | |
最寄バス停 | 徒歩分数 | 9分 | |
小学校校区 | 枚方市立田口山小学校/枚方市立西長尾小学校 | 中学校校区 | 枚方市立長尾西中学校 |
※学校区は住所から自動判定したものであり、保証できる情報ではございません。正確な学校区はお問い合わせ下さい。
「人型アイコン」を地図上にドラッグすることで『Google Street View』に切り替わります。
※地図上の「対象地」は「〒573-1153 大阪府枚方市招提大谷3丁目」の場所を指しています。実際の場所ではない場合がございます。詳しくはお問い合わせください。
物件概要
種目 | 中古一戸建住宅 | ||
---|---|---|---|
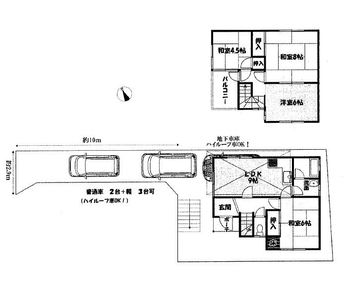
間取り | 4LDK | 間取り内訳 | |
土地面積 | 101.47㎡ | 私道面積 | |
建物面積 | 95.83㎡ | 建物構造規模 | 木造 2階建 |
築年月(竣工月) | 1989年3月 | 駐車場 | |
建ぺい率/容積率 | 60%/200% | 都市計画 | 市街化区域 |
接道状況 | 南西4.4m 公道 一方道路 | ||
地目 | 宅地 | ||
土地権利 | 所有権 | 地勢 | |
用途地域 | 準工業地域 | ||
現況 | 所有者居住中 | 取引態様 | 媒介 |
建築確認番号 |
※未完成物件は工事の進捗状況により遅れが生じる場合があります。予めご了承ください。
取引条件等
引渡し | 相談 |
---|
その他
設備 | |||
---|---|---|---|
特徴 | |||
諸条件・相談 | |||
情報登録日 | 2025年7月20日 | 情報更新予定日 | 2025年10月15日 |
物件番号 | 36284 |